売家
  
16975

 住所からリンクしたMAPの中央付近が物件所在地となります→詳しい場所は「地図検索」で!
 本図と現況が異なる場合は現況優先とさせて頂きます
 このページはA4タテでそのまま印刷できます


 写真  
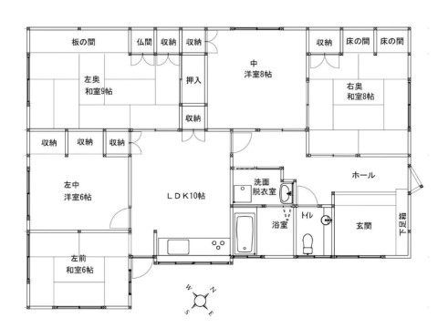
 図面  平屋ですので、二階を気にせずいろいろリフォーム出来そうです。

 物件詳細     今月の壁紙
価 格   1550万円 「バレンタイン」
 所在地   福津市渡1448
 交 通   鹿児島本線
福間駅
下車


 建物情報    
面 積   合計/128.66u(38.91坪) 
 間 取   5LDK
 内 訳   間取図参照
 築年数   平成2年2月
 構 造   木造1階建
 駐車場   あり 

 土地情報    
面 積   349.12u(105.60坪)
地 目   宅地 
上下水   水道/下水
接 道   南東側公道に接道
権 利   所有権 
都市計画   非線引区域 
用途地域   第一種住居地域 
建蔽率   60% 
容積率   200% 

 その他    
 現 況   空家
 引渡時期   相談 
 学校区   津屋崎小/津屋崎中 
 周辺施設  
 取引態様   仲介 
 
 ここがお勧め!
<2026.01.22/新規登録>
道路を挟んで津屋崎の内海が広がっており、ご隠居さんハウスとして良さそうな場所に建っている物件です。釣りが好きな人なら、道路際から釣り糸を垂れても良さそうなんですが、内海で泥ばっかりですので釣れないと思います(笑)自転車かスクーターにでも乗って、漁港の先の堤防まで出掛けましょう。因みに、道路と内海を仕切る堤防の向こう側は、プレジャーボートの停泊場になっておりますので、本気で海釣りをされたいのであれば、ボートを購入するという手もあります。福間から神湊にかけては、結構な種類の魚が泳いでおりますので、季節に応じたいろいろな釣りを楽しむ事が出来ると思います。ただ、陸揚げ船と違い、常時海に浸かっておりますので、年に一度くらいはフジツボ取りと船底塗装作業を行わなくてはいけません。福間漁港でドックを借りると一泊二日で1.5万円ほど掛かりますが、船底のメンテをするのとしないのとでは船の速度や燃費に大きな差が出て来ますので、年中行事として予定表に入れておかれる事をお勧め致します。というか、物件の紹介と言うより、津屋崎の船釣り紹介になっとるなぁ…。

<2026/写真撮影>

 備 考  

  Presented by Sakura-Fudousan http://genkai.net/sakura/