売家
  
16953

 住所からリンクしたMAPの中央付近が物件所在地となります→詳しい場所は「地図検索」で!
 本図と現況が異なる場合は現況優先とさせて頂きます
 このページはA4タテでそのまま印刷できます


 写真  
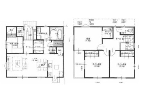
 図面  子供部屋にゆとりを持たせた間取りです。

 物件詳細     今月の壁紙
価 格   2580万円 「バレンタイン」
 所在地   宗像市広陵台3-1-18
 交 通   鹿児島本線
教育大前駅
下車


 建物情報    
面 積   合計/112.75u(34.10坪) 
 間 取   4LDK
 内 訳   間取図参照
 築年数   平成25年10月
 構 造   木造2階建
 駐車場   あり(2台) 

 土地情報    
面 積   251.25u(76.00坪)
地 目   宅地 
上下水   水道/下水
接 道   北側公道に接道
権 利   所有権 
都市計画   市街化区域 
用途地域   第二種低層住居専用地域 
建蔽率   40% 
容積率   60% 

 その他    
 現 況   空家
 引渡時期   相談 
 学校区   赤間小/城山中 
 周辺施設  
 取引態様   仲介 
 
 ここがお勧め!
<2026.02.07/新規登録>
築年数に応じてバラエティに富んだ価格設定の物件が売りに出されている広陵台に新規物件の登場です。今回の物件は価格的には中間層の物件で、築年数的には築13年ですので、中古住宅としては脂ののった丁度いい頃塩梅の築年数じゃないかと思います。ただ、気になるのは広陵台の全般的な動きです。いくつも物件数が出ている割には、回転が悪いような気がするんですよねぇ。新規物件が売りに出される場合、担当する不動産会社は必ず周辺の売り物件を参考にしながら値付けを行うものですが、その参考物件自体が反響の薄い価格であれば参考にした物件の動きも当然悪くなります。広陵台の売家全般に言える事なんですが、これだけ在庫がたまっている状況で勝ち抜いていくためには、も少し思い切った価格設定が必要になって来ているんじゃないかと思います。

<2026/写真撮影>

 備 考  

  Presented by Sakura-Fudousan http://genkai.net/sakura/