売家
  
16907

 住所からリンクしたMAPの中央付近が物件所在地となります→詳しい場所は「地図検索」で!
 本図と現況が異なる場合は現況優先とさせて頂きます
 このページはA4タテでそのまま印刷できます


 写真  
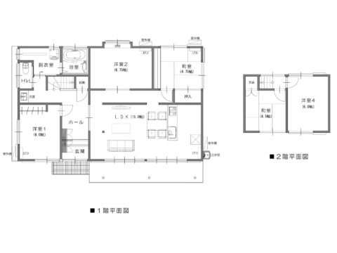
 図面  二階がなくても家族四人で暮らせそうな間取りです。

 物件詳細     今月の壁紙
価 格   2290万円 「獅子舞」
 所在地   宗像市ひかりヶ丘5-8-10
 交 通   鹿児島本線
赤間駅
下車


 建物情報    
面 積   合計/115.52u(34.94坪) 
 間 取   5LDK
 内 訳   間取図参照
 築年数   昭和58年4月
 構 造   木造2階建
 駐車場   あり(2台) 

 土地情報    
面 積   249.30u(75.41坪)
地 目   宅地 
上下水   水道/下水
接 道   西側約4m幅公道に接道
権 利   所有権 
都市計画   市街化区域 
用途地域   第一種低層住居専用地域 
建蔽率   40% 
容積率   60% 

 その他    
 現 況   空家
 引渡時期   相談 
 学校区   河東西小/河東中 
 周辺施設  
 取引態様   仲介 
 
 ここがお勧め!
<2026.01.16/新規登録>
築40年越えの住宅を念入りに改造したリフォーム物件の登場です。これくらいの築年数になると、台所は食事を取るためだけの場所として住宅の北側に配置されていることが多いのですが、そこも現代風に南側に配置され、食事をしたうえで寛げるLDKに生まれ変わっております。ただま、この物件が建っているいる場所は、リフォーム物件が群雄割拠するひかりヶ丘です。その中で勝ち抜いていくためには価格的な魅力も必要になって来ます。ここは売り出し直後ということもあり同じようなリフォーム物件の中では高めの価格になっておりますが、春の陣での売却を考えるのであればもうワンステップかツーステップの価格の見直しが必要かもしれません。

<2026/写真撮影>

 備 考   ★リフォーム物件


  Presented by Sakura-Fudousan http://genkai.net/sakura/