売マンション
  
16843

 住所からリンクしたMAPの中央付近が物件所在地となります→詳しい場所は「地図検索」で!
 本図と現況が異なる場合は現況優先とさせて頂きます
 このページはA4タテでそのまま印刷できます


 写真  駅徒歩2分の好立地マンションです。
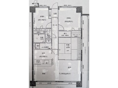
 図面  ベーシックな3LDKの間取りです。

 物件詳細     今月の壁紙
 価 格   1820万円→1750万円→1680万円 「雪だるま」
 所在地   宗像市栄町7-1
物件名   アーサー宗像リベックス / 11F 
 交 通   鹿児島本線
赤間駅
徒歩2分


 建物情報    
 専有面積   70.30u(21.26坪) 
 バルコニー   21.65u(6.54坪) 
 間 取   3LDK 
 間取内訳   間取図参照
 築年数   平成5年3月 
 構 造   鉄骨鉄筋コンクリート11階建て
 駐車場    

 土地情報    
面 積  
持 分    
地 目   宅地 
上下水   水道/下水
接 道  
権 利   区分所有権 
都市計画  
用途地域  
建蔽率    
容積率    

 その他    
管理費   月額 7100円 
修繕積立金   月額 14900円 
 管理会社   褐叶<nウジングサービス 
 管理形態   全部委託 
 総戸数    
 施工会社    
 現 況   空家
 引渡時期   相談 
 学校区   赤間小/城山中 
 周辺施設  
 取引態様   仲介 
 
 ここがお勧め!
<2025.12.19/新規登録>
<既存写真使用/写真撮影>
<2026.02.09/価格変更>
素材物件が70万円ダウンです。最上階の角部屋になりますが、同じような価格帯でリフォーム物件が出ており、それと比べるとインパクト的には弱くなるような気がします。

<2026.04.19/価格変更>
70万円ダウンです。九州でも有数の乗降客を誇る赤間駅徒歩2分ということを考えれば、なかなか魅力的な価格になったのではないかと思います。

 備 考   ★最上階角部屋


  Presented by Sakura-Fudousan http://genkai.net/sakura/