売マンション
  
16821

 住所からリンクしたMAPの中央付近が物件所在地となります→詳しい場所は「地図検索」で!
 本図と現況が異なる場合は現況優先とさせて頂きます
 このページはA4タテでそのまま印刷できます


 写真  JR古賀駅とJR千鳥駅のまん中あたりに建っております。
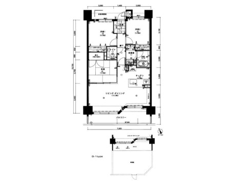
 図面  一階にしかない専用庭を装備です。

 物件詳細     今月の壁紙
 価 格   2480万円 「雪だるま」
 所在地   古賀市花見東1-8-1
物件名   フェスティオ古賀HANAMI / 1F 
 交 通   鹿児島本線
千鳥駅
下車


 建物情報    
 専有面積   76.97u(23.28坪) 
 バルコニー    
 間 取   3LDK 
 間取内訳   間取図参照
 築年数   平成10年1月 
 構 造   鉄筋コンクリート10階建て
 駐車場   空あり/月額 7000円 

 土地情報    
面 積  
持 分    
地 目   宅地 
上下水   水道/下水
接 道  
権 利   区分所有権 
都市計画    
用途地域  
建蔽率    
容積率    

 その他    
管理費   月額 4900円 
修繕積立金   月額 6900円 
 管理会社   合人社計画研究所 
 管理形態   全部委託 
 総戸数    
 施工会社    
 現 況   空家
 引渡時期   相談 
 学校区   花見小/古賀北中 
 周辺施設  
 取引態様   仲介 
 
 ここがお勧め!
<2025.12.11/新規登録>
<既存写真使用/写真撮影>
マンションながら戸建て感覚でガーデニングも楽しめそうな専用庭付きのお部屋です。お部屋の間口の幅で奥行きも3メートル程度とそう広くはありませんが、小さい子供さんを遊ばせるには丁度いいくらいの広さで、子供さんが大きくなればガーデニングをしてみたり家庭菜園をされてもいいんじゃないかと思います。このサイズがあれば、かなりの収穫量が見込めると思います。因みに我が家の畑では今年初めてじゃがいもを植えました。グッディで種イモを買ってきて、種イモ売り場に育て方が書いてあったので、その通りに間隔を開けて植え、茎が出てきたら追い土をして肥料を撒きました。あとは花が咲いてしおれて来たら茎の下を掘り返すとジャガイモがワサワサと数珠つながりになって出て来る予定なんですが、12月中旬になっても花が咲く気配はなく、しかもすでに茎や葉がしおれはじめてるんですよねぇ…。暖冬なのでジャガイモの生育に異常が発生したのかなぁ…。ま、花が咲かなくてもとりあえずお正月過ぎには一部掘り返してみて、成長の具合を確かめてみようと思います。てな風に、家庭菜園は毎年いろんな野菜づくりをしながら悩み、喜び、そしてお腹を満たすことが可能です。

 備 考  

  Presented by Sakura-Fudousan http://genkai.net/sakura/