売家
  
16502

 住所からリンクしたMAPの中央付近が物件所在地となります→詳しい場所は「地図検索」で!
 本図と現況が異なる場合は現況優先とさせて頂きます
 このページはA4タテでそのまま印刷できます


 写真  
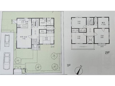
 図面  主寝室には広めの書斎を装備です。

 物件詳細     今月の壁紙
価 格   2198万円2098万円→1998万円 「七夕」
 所在地   宗像市ひかりヶ丘7-2-64
 交 通   鹿児島本線
赤間駅
下車


 建物情報    
面 積   合計/115.92u(35.06坪) 
 間 取   5LDK
 内 訳   間取図参照
 築年数   平成3年11月
 構 造   木造2階建
 駐車場   あり(4台) 

 土地情報    
面 積   232.54u(70.34坪)
地 目   宅地 
上下水   水道/下水
接 道   南側公道に接道
権 利   所有権 
都市計画   市街化区域 
用途地域   第一種低層住居専用地域 
建蔽率   40% 
容積率   60% 

 その他    
 現 況   空家
 引渡時期   相談 
 学校区   河東西小/河東中 
 周辺施設  
 取引態様   仲介 
 
 ここがお勧め!
<2025.07.08/新規登録>
<2025.10.31/条件変更>
<2026.02.28/価格変更>
リフォーム物件が100万円ダウンとなりました。暮らしやすそうなベーシックな間取をしており、リフォームについても間取りの変更などはほぼなかったのではないかと思います。南側道路で東斜面ですので、採光性がいい上に西日は遮っていますので立地の方もも上々の物件です。

<2026.04.25/価格変更>
<2025/写真撮影>

 備 考   ★リフォーム物件(2025.10.31)


  Presented by Sakura-Fudousan http://genkai.net/sakura/